- Schwarzes Brett
- Angebote
- Immobilien & Grundstücke
- Mehrfamilienhaus in Bremen - Walle mit 3 Wohneinhe
Mehrfamilienhaus in Bremen - Walle mit 3 Wohneinhe
Datum: 25.03.26
Name: Klose
Kaufpreis: 450.000 €
Gesamtnutzfläche: 252 m2
Vermietbare Fläche: 234 m2
Anzahl der Wohneinheiten: 3
Souterrain Einheiten: 1
Heizungsart: Heizöl
Baujahr der Heizung: 1985
Garten: vorhanden
Terasse: vorhanden
Balkon: vorhanden
Maklercourtage: 6 % zzgl. gesetzlicher MwSt.
OBJEKTBESCHREIBUNG
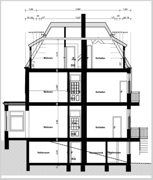
Bei der angebotenen Immobilie handelt es sich um ein charmantes Reihenendhaus in ruhiger Wohnlage, das vollständig zu Wohnzwecken genutzt wird. Das Gebäude erstreckt sich über mehrere Ebenen und überzeugt durch eine durchdachte sowie vielseitig nutzbare Raumaufteilung.
Im Untergeschoss befindet sich eine separate Souterrain-Einheit, die sich ideal zur Vermietung eignet. Der Zugang erfolgt ebenerdig über die Gartenseite und ermöglicht somit eine angenehme, unabhängige Nutzung.
Das Erd- und Obergeschoss beherbergen jeweils eine abgeschlossene Wohneinheit, die über das zentrale Treppenhaus erschlossen werden. Beide Wohnungen verfügen über ein Schlafzimmer, eine Küche, ein Badezimmer sowie ein großzügiges Wohn- und Esszimmer. Die vorhandenen Balkone erweitern den Wohnraum nach außen und bieten zusätzlichen Komfort sowie attraktive Aufenthaltsmöglichkeiten im Freien.
Im Dachgeschoss befindet sich eine weitere Wohneinheit, die ebenfalls über das Treppenhaus erreichbar ist. Diese umfasst ein kombiniertes Wohn- und Schlafzimmer, eine Küche, ein Badezimmer sowie einen Flur und eignet sich ideal als kompakte, eigenständige Einheit.
ZUSTAND
Die Immobilie befindet sich in einem vermietbaren Zustand. Zur nachhaltigen Sicherung der Vermietbarkeit sowie zur weiteren Wertsteigerung sind perspektivisch Sanierungsmaßnahmen einzuplanen.
LAGE
Die Immobilie befindet sich im beliebten Bremer Stadtteil Walle in zentrumsnaher Lage. Die Umgebung zeichnet sich durch eine hervorragende Infrastruktur sowie eine sehr gute Verkehrsanbindung aus. Die Nähe zur B75 sowie eine optimale Anbindung an den öffentlichen Nahverkehr gewährleisten eine schnelle Erreichbarkeit der Bremer Innenstadt und des Umlands.
Zahlreiche Einkaufsmöglichkeiten, Schulen, gastronomische Angebote sowie Einrichtungen des täglichen Bedarfs befinden sich in unmittelbarer Umgebung. Darüber hinaus bieten nahegelegene Erholungsflächen wie der Waller Park sowie die Bremer Hafenanlagen attraktive Freizeitmöglichkeiten.
Die Lage eignet sich ideal für Familien, Berufstätige und Kapitalanleger, die urbanes Wohnen mit guter Anbindung und gewachsener Infrastruktur zu schätzen wissen.
Angaben zur Energieausweispflicht nach §16a EnEV:
Energiebedarfsausweis liegt vor.
